В современных кухнях, в отличие от старых планировок, двух-трех розеток уже катастрофически не хватает. Обилие новой бытовой техники и гаджетов требует грамотного подхода к электроснабжению. Использование тройников и удлинителей не только неудобно, но и запрещено строительными нормативами (СНиП). Единственное верное решение — спланировать и провести полноценный ремонт электропроводки. Для этого необходимо разобраться в типах розеток, правилах их расчета, оптимальном расположении и особенностях монтажа в условиях кухни.
Особенности использования кухонных розеток
Кухня — это помещение с агрессивной для электроприборов средой, что требует особого внимания к выбору и установке розеток.
На эксплуатацию влияют следующие ключевые факторы:
- Высокая влажность и конденсат, которые могут привести к окислению контактов.
- Жировые испарения, оседающие на внутренних деталях и ухудшающие качество соединения.
- Риск попадания жидкостей, способных вызвать короткое замыкание.
- Наличие газовых коммуникаций, вблизи которых установка электрооборудования ограничена.
- Вероятность протечек из систем водоснабжения и отопления.
- Большое и разнородное количество потребителей энергии с разной мощностью и графиком работы.
- Необходимость в резервных точках для подключения переносных приборов.
Помимо функциональности и безопасности, важно учитывать и эстетику. Розетки должны быть удобными в использовании и гармонично вписываться в интерьер, независимо от его стиля и размера кухни.
Мощность электроприборов на кухне
Планируя электромонтажные работы, необходимо рассчитать не только количество и расположение розеток, но и нагрузку на сеть. Основой для этого служит мощность всей кухонной техники.
Ориентировочная потребляемая мощность распространенных приборов:
- Варочная панель (плита): 1000–2500 Вт
- Посудомоечная машина: 1000–1500 Вт
- Электрический чайник: 1800–2200 Вт
- Микроволновая печь: 850–1200 Вт
- Холодильник: 400–600 Вт
- Проточный водонагреватель: 3000–5000 Вт
- Вытяжка: 300–500 Вт
- Духовой шкаф: 1000–1800 Вт
Также стоит учесть возможное наличие стиральной машины, кондиционера, телевизора и другой техники. Для маломощных временных приборов (кофемолка, миксер, тостер) достаточно предусмотреть резервные розетки, но и о пылесосе, который может потреблять до 2000 Вт, забывать не стоит.
Мощность самой розетки определяется по маркировке: напряжение (В) умножается на силу тока (А). Стандартная розетка на 16А рассчитана на 4 кВт (16А * 250В). Для групп мощных приборов лучше выбирать модели на 25А (6.25 кВт).
Какие требования предъявляются к розеткам
Основные требования к розеткам Учитывая специфику кухни, все электроустановочные изделия должны соответствовать строгим нормам, включая СНиП 3.05.06-85.
К розеткам предъявляются следующие ключевые требования:
- Механическая прочность: корпус и крепления должны выдерживать частое подключение/отключение вилок.
- Влаго- и пылезащищенность: необходима устойчивость к влажному воздуху, пару и брызгам.
- Термостойкость: материалы не должны деформироваться от высокой температуры или случайного попадания горячего.
- Надежность и долговечность контактов: клеммы должны обеспечивать плотное соединение, исключая нагрев и искрение.
- Безопасность и эстетика: изделия должны быть безопасны в использовании и соответствовать дизайну помещения.
Разновидности розеток для кухни
В зависимости от дизайна, планировки и ваших задач, можно выбрать один из следующих типов:
- Накладные: просты в установке (не требуют штробления), имеют разнообразный дизайн. Минус — выступающий корпус, который может мешать плотной установке мебели к стене.
- Встроенные (внутренние): монтируются в стену, экономя пространство и выглядя аккуратно. Требуют подготовки отверстий и установки подрозетников.
- Угловые: разновидность накладных, предназначенная для монтажа в углах (между стенами или стеной и мебелью). Позволяют эффективно использовать «мертвые» зоны.
- Выдвижные и поворотные блоки: современное решение, позволяющее спрятать несколько розеток внутри столешницы или шкафа. Максимально эстетичны и удобны для компактных кухонь.
Двойная накладная розетка
Внутренняя тройная розеткаОкончательный выбор делается после разработки планировки кухни, расстановки техники и оценки собственных навыков монтажа.
Схема размещения розеток на кухне
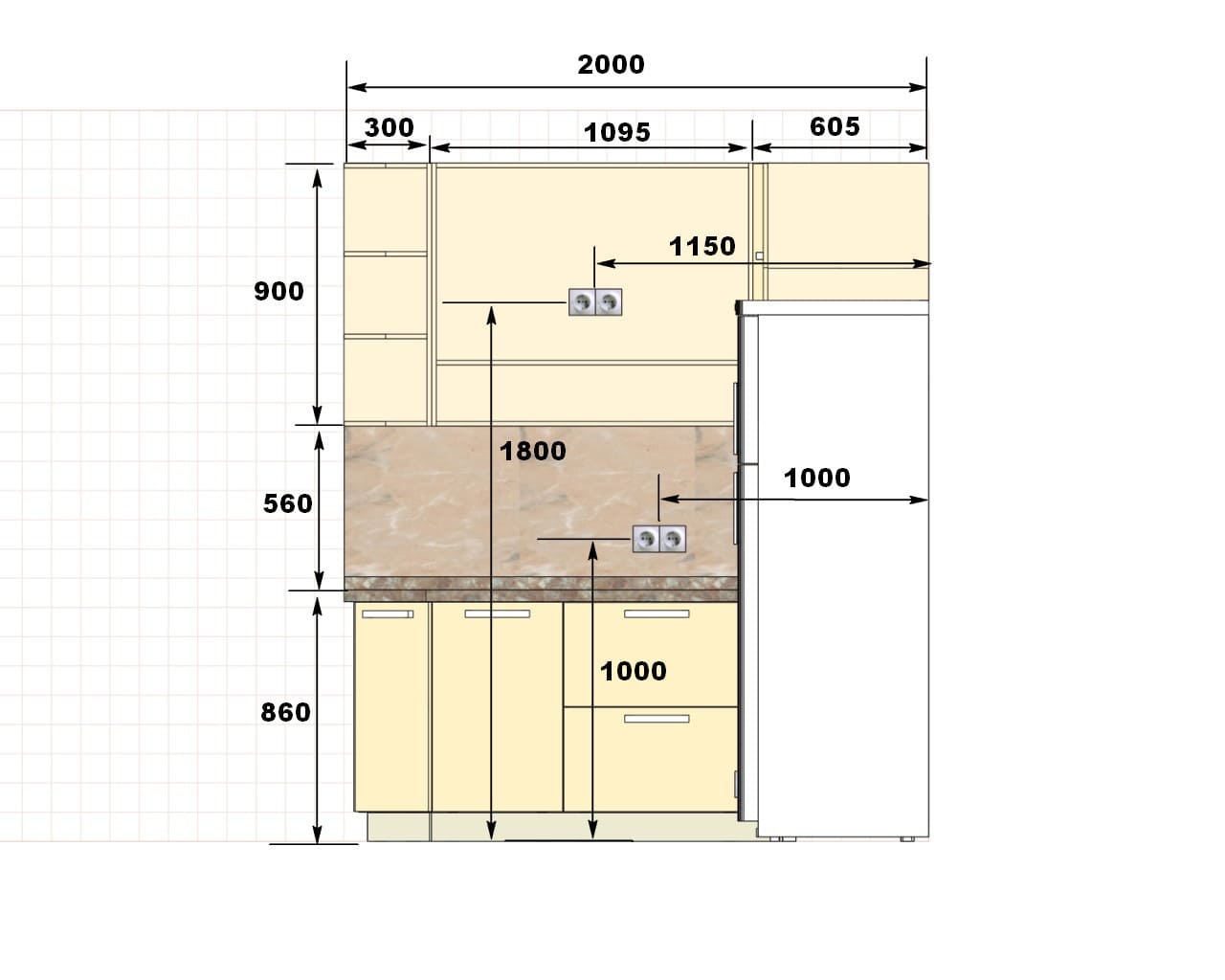
Наиболее логичный подход — зонирование розеток по вертикальным уровням, соответствующим расположению техники:
- Нижний уровень (10-30 см от пола): для стационарной встроенной техники — холодильник, плита, посудомоечная и стиральная машины, иногда измельчитель отходов.
- Средний (рабочий) уровень (10-30 см над столешницей): для приборов, используемых на рабочей поверхности — чайник, тостер, блендер, мультиварка, микроволновка, а также для подсветки.
- Верхний уровень (15-40 см от верхнего края навесных шкафов или 1.8-2 м от пола): для вытяжки, телевизора, кондиционера, дополнительного освещения (бра, светодиодные ленты).
Целесообразно разделить электропитание этих уровней на разные линии (автоматы в щитке). Для силовых линий рекомендуется использовать медный кабель сечением не менее 2.5 мм².
Лучшие варианты размещения
Удобство пользования приборами зависит от правильного расчета количества розеток и схемы подключенияОсновное внимание уделяется рабочей зоне. Розетки на фартуке лучше располагать симметрично, блоками, чтобы не нарушать дизайн. Точки нижнего уровня можно скрыть за цоколем гарнитура. Верхние розетки должны быть максимально незаметными, но доступными. Перед началом работ полезно создать несколько масштабных эскизов с разными вариантами расстановки.
Количество розеток
Главный принцип — разумный запас. Недостаток розеток ведет к использованию опасных удлинителей, а избыток — к неоправданным затратам и загромождению.
Простая формула расчета: суммируйте розетки для всей постоянно подключенной техники, добавьте половину от количества периодически используемых приборов и плюс 2-3 резервные точки. Лучше предусмотреть немного больше, чем потом постоянно дергать вилки, изнашивая контакты.
Расстояния и места размещения
Высота установки розеток и выключателей на кухнеВысота установки — это вопрос не только удобства, но и безопасности. Розетки должны быть защищены от брызг воды и жира.
Рекомендуемые расстояния от прибора до розетки:
- Холодильник, посудомоечная машина: 10-30 см от пола (сбоку или сзади, с учетом вентиляции).
- Рабочая зона (над столешницей): 10-30 см от уровня столешницы.
- Вытяжка: 15-40 см от верха навесного шкафа или 1.8-2 м от пола.
- Варочная панель и духовой шкаф: не менее 30-50 см в сторону от них, чтобы избежать перегрева.
- Телевизор: 5-50 см от него, в зависимости от способа крепления.
Эти отступы минимизируют риски от нагрева техники и возможных протечек.
Основные ошибки в размещении розеток
Неправильное расположение розетокЧтобы избежать проблем, запомните типичные ошибки, которые нельзя допускать:
- Установка над мойкой или варочной поверхностью (риск попадания воды, пара, жира и перегрева).
- Монтаж внутри ниш для встраиваемой техники без учета ее габаритов — прибор может не встать на место.
- Размещение в непосредственной близости от водопроводных, канализационных или газовых труб.
- Прокладка электрокабеля вплотную или вдоль газовой трубы — это прямая угроза безопасности.
Тщательное планирование, соблюдение норм и правил монтажа позволят создать на кухне безопасную, удобную и долговечную систему электроснабжения, которая будет исправно служить многие годы.




